JR中央本線 石和温泉駅 徒歩7分
1階ロードサイド
1階ロードサイド
トイレ・エアコン・駐車場3台分以上
バリアフリーで整骨院にオススメ
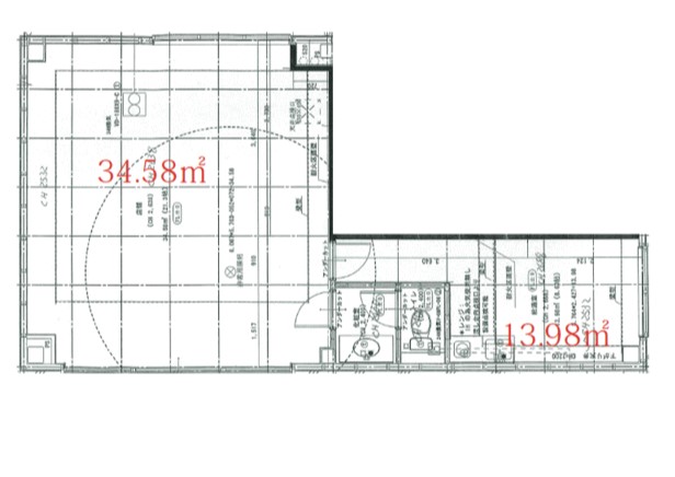
物件写真・間取り
物件概要
| 住所 | 山梨県甲府市川田町933-18 |
|---|
| 交通機関 | JR中央本線 石和温泉駅 徒歩 7分 |
|---|
| 所在階 / 階数 | 1 |
|---|
| 築年月 | 2012年06月 |
|---|
| 駐車場 | 有り |
|---|
| 現況 | 空 |
|---|
| 情報登録日 | 2025年11月21日 |
|---|
| 情報更新日 | 2025年11月21日 |
|---|
契約情報
| 契約期間 | 2年 |
|---|
| 取引態様 | 媒介 |
|---|
物件地図人型アイコンを地図上にドラッグするとストリートビューで表示されます。
山梨県甲府市川田町933-18




