テナント物件Tenant

阪急豊中駅徒歩1分の好立地の1階店舗!
前面駐車場有り!
貸店舗(テナント)

サクセス駅前ビル1F

賃料(管理費)
440,000円
敷金/礼金
3ヶ月 / 2ヶ月
面積
165㎡
阪急豊中駅徒歩1分の好立地!1階店舗(前学習塾) 前面駐車スペース4台別途契約可 巨大看板設置スペース提出無料!

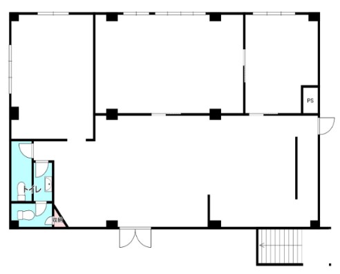
物件写真・間取り

物件概要

住所大阪府豊中市玉井町1丁目
交通機関

阪急宝塚本線 豊中駅 徒歩 1分

所在階 / 階数

1

築年月1972年09月
駐車場

有り

情報登録日2025年11月18日
情報更新日2025年11月18日

契約情報

契約形態

定期借家契約

契約期間

10年

取引態様

媒介

物件地図人型アイコンを地図上にドラッグするとストリートビューで表示されます。

大阪府豊中市玉井町1丁目

地図を戻す

資料請求・お問い合わせ

物件名サクセス駅前ビル1F
お問い合わせ内容任意
お名前必須
フリガナ必須
電話番号任意
メールアドレス必須

確認のため同じアドレスをご入力ください。

備考欄任意

ご希望の連絡方法、見学希望日、希望条件、質問などがございましたら、ご記入ください